切换到宽版
  • 8阅读
  • 2回复

[奇观]广州永庆坊吉祥段 / 都设设计[73P] [复制链接]

上一主题 下一主题
在线jjybzxw

UID: 551814

 

发帖
215945
金币
643797
道行
2006
原创
2443
奖券
3260
斑龄
41
道券
1197
获奖
0
座驾
设备
摄影级
在线时间: 47053(小时)
注册时间: 2008-10-01
最后登录: 2026-01-03
只看楼主 倒序阅读 使用道具 楼主  发表于: 2小时前

序言
历时6年,都设在广州永庆坊的实践既有建成的喜悦也有未建成的遗憾,这种不可控的结果正是城市更新的魅力所在。永庆坊吉祥段是整个永庆坊项目的收尾,包括了金声电影院改扩建(建成)、吉祥段商业街坊(部分建成)、酒店(未建)。它不是简单的“修旧如旧”,而是一场“老广新广”共同编剧的城市更新真人秀——城市文化、商业逻辑、流量、时代性,一个都不能少。以城市空间修复为先是这次街区振兴的前提。
凌克戈

▲ 诺曼底100年前后的街道空间
街道的尺度空间
才是最重要的城市记忆

▲ 改造前

▲ 改造后

01.
百年永庆坊
广府生活博物馆

永庆坊不仅仅是一个物理空间,更是一个活着的文化载体。如何辩证的看待时代与历史是更新的关键。都设在城市更新中一直秉承修复“城市空间格局”为先,传统文化与时代性交融,这是一次基于此理论的有效实践。
商贸基因与建筑肌理的百年积淀
永庆坊恩宁路的文化根脉始于清代“一口通商”(1757 年),西关作为广州对外枢纽,商船云集催生“商住共生”格局。作为连接上下九步行街与荔枝湾的重要节点,这里始终是岭南文化与外界交流的传统窗口,83处建筑遗产串联起的历史空间网络,让每一条街巷都承载着老城的发展印记。开业于1934年的金声电影院,曾是广州第一家有冷气开放的电影院,承载了老西关太多的美好回忆。

▲ 传统与外来文化的汇聚
现状
都设介入设计时,除金声电影院残留一片墙之外,改造范围内基本上是违章搭建的危房,原有的街区荡然无存。现有的建筑基本上是上世纪80年代的砖房,外立面裸露或瓷砖为主。



▲ 吉祥段现状
02.
百年古巷道
街区肌理新提振

▲ 商业部分前后城市肌理变化
城市肌理是城市的掌纹,记录着历史的变迁。永庆坊的更新不以大拆大建为手段,而是根植于历史肌理的延续,遵循了再现城市空间记忆的原则。街巷空间是西关历史街区的骨架,承载着重要的历史信息和生活记忆。1931年恩宁路骑楼街成型,永庆坊为核心,骑楼廊柱遮风挡雨、拓展商面,竹筒屋实现“上住下商”,形成“三横五纵”街巷与麻石、趟栊门等岭南建筑符号。
对于已经被破坏的原始城市肌理,都设经过详尽的追溯,恢复1937年的吉祥段完全成型的城市肌理,然后在此基础上进行设计。
本项目原始情况的街巷因多年无序发展,脉络曲折,多为断头路,宽度不一,大部分窄约为3米,车辆无法通行。设计首先对道路系统进行细致梳理,在保持原有街巷走向和尺度的基础上,打通断头巷道,形成良好的步行环境。
形成了混合功能、因地制宜、多样化多类型的混合街区,塑造了良好的步行环境、最大的经济价值、公共空间的节奏变化和丰富人文的趣味。
▲ 更新后动线:打通城市脉络,退让出多个城市广场空间
▲ 更新后建筑:契合周边城市肌理
▲ 更新前后城市肌理对比

▲ 更新前后对比



▲ 对传统街巷空间的重整
拆解老街区更新命题后,都设意识到街巷的丰富性正是由空间多样性、业态混杂与文脉续写共同发酵出的场所精神。通过保留空间形态的多样性(如广场、商业街、小巷)、功能业态的混合性以及历史文脉的延续性所共同构成的街巷空间丰富性。








▲ 建筑有新旧,街巷无不同
填空城市空间
吉祥段作为永庆坊的收官,填补了永庆坊一期的缺憾:没有广场、没有一个主要的展示面。通过张弛有度的截取空间,提供了多样性的城市空间,保留了原住民的生活形态,避免了“空心化”和纯粹的景区化。


▲ 集会广场@景观公司提供

▲ 沿广场完整的商业界面



▲ 口袋公园
游客能在这里看到老广们在榕树下下棋、听曲,这种“见人、见物、见生活”的模式,真正打造了一座没有围墙的广府生活博物馆。



▲ 人性化的空间
停车问题的智能化解决方案
停车问题是老城区城市更新中的一大难题,作为每年几百万人次的“城市网红点”,停车是不可回避的难题,而永庆坊最后的希望就在只剩下一片墙的“金声电影院”。都设采用立体机械式无人车库,在小小的几千平米内设置了300-400辆车的停车,基本解决了永庆坊的停车问题。同时用一个多功能演艺场所回应了历史上的演出功能。

▲ 金声电影院改造前后对比


▲ 车库

▲ live house

▲ 金声电影院改扩建
03.
岭南风貌韵
建筑传承与革新

建筑是凝固的音乐,永庆坊的建筑更新是对岭南建筑美学的一次深度致敬与现代转译。在永庆坊片区,具有窄面宽、大进深的特征的竹筒屋是上百年来的特色。竹筒屋建筑沿着街道紧密排布,门面窄小、纵深狭长,开间宽约4-6米,进深约7-12米。都设深入研究传统竹筒屋的空间模式,提取其本质特征,适当的微调以满足现代商业的需求并通过现代手法进行重新诠释。

▲ 传统竹筒屋
单元开间模数——4米与4.6米,既呼应传统竹筒屋的尺度特征,又契合现代商业空间的使用需求。4米开间对应8米柱网内一分二的布局方式,4.6米开间则采用对应柱网尺寸。两种模数搭配使用,在统一中寻求变化,创造出既传统又现代的街区景象。

▲ 符合现代商业需求的内里





▲ 多样化模块化的单元
窗户设计采用现代手法再现满洲窗形式,不仅在视觉上延续传统意象,更在功能上满足现代采光和通风需求。立面细部融入灰塑工艺,这种国家级非物质文化遗产的运用,不仅增强了立面的艺术性,也促进了传统工艺的活态传承。


▲ 西关大屋建筑细节的立面单元模块



立面细部融入灰塑工艺,这种国家级非物质文化遗产的运用,不仅增强了立面的艺术性,也促进了传统工艺的活态传承。




▲ 非遗传统的运用
04.
古今新声汇
现代历史话交融

在整个项目中,都设始终坚持“和而不同”的处理手法,让建筑既传承了岭南风貌,又具备了当代审美,成为一部可阅读的建筑美学教科书。




▲ 新与旧的共生和对话
05.
最大的遗憾
未能实施的酒店


▲ 融入城市肌理的高坪效酒店
本项目的开端来自于这个酒店的投标,最后连施工图都已完成,却卡在了最后一户的拆迁上,这个酒店从建筑到室内,融合了“西关大屋+西关小姐”的文化脉络,但最后停留于纸面,是本项目最大的遗憾。但城市更新的魅力或许就在于此,这也是城市生长的特性。

▲ 西关大屋的故事线叙事

▲ 西关小姐客房

▲ 西关小姐套房,岭南特色的现代演绎
当今的城市更新中,不少存在用力过猛或仅停留在改造层面、未达真正更新效果的问题,而永庆坊恩宁路的更新颇具参考价值—— 对永庆坊而言,它塑造了街区独特的文化名片;对广州而言,它实现了城市记忆的唤醒与功能活化。传承不难,难的是让过去的美好重回当下、让时代印记映射于历史肌理,这正是本案城市更新与建筑改造的核心初衷。作为恩宁路街区现代风格的建筑名片,吉祥段与金声电影院通过对具有历史感的老建筑进行设计改造,以“针灸式”的温和更新方式与传统、过去展开对话,为街区迎接新生。

技术图纸

▲ 总平面图

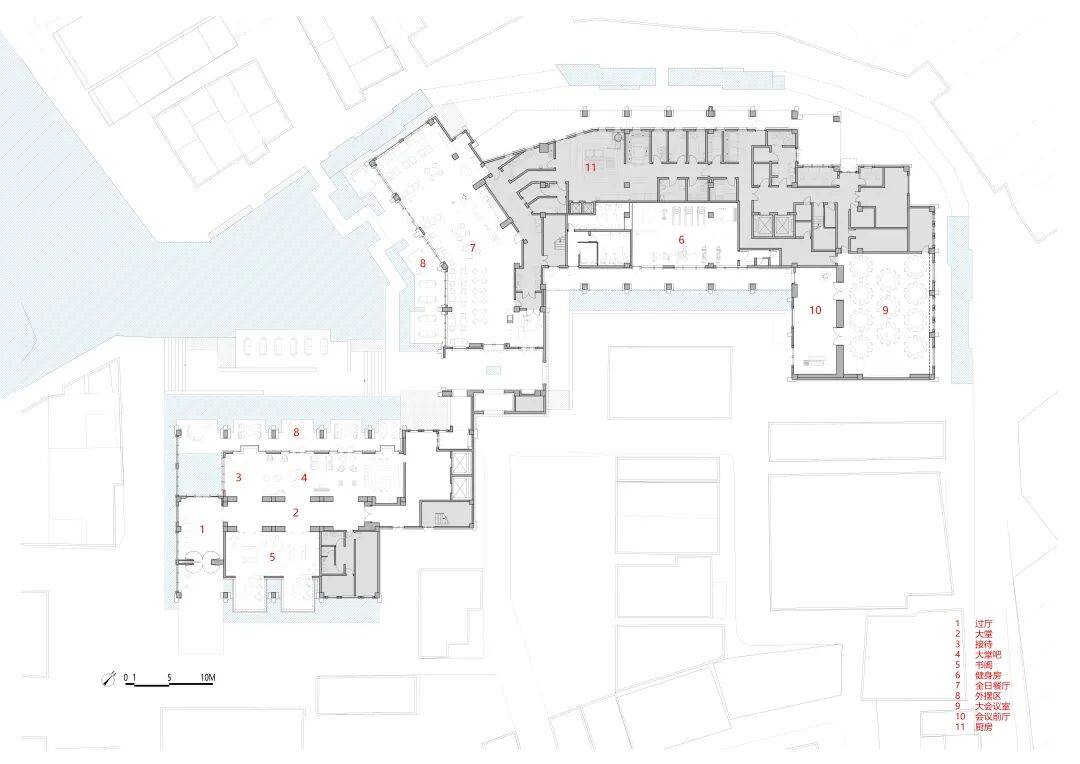
▲ 商业首层平面图

▲ 商业二层平面图

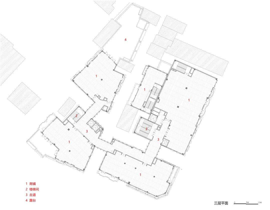
▲ 商业三层平面图

▲ 金声电影院首层平面图

▲ 金声电影院二层三层平面图

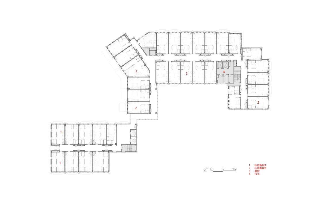
▲ 酒店首层平面图

▲ 酒店二层平面图

▲ 商业东立面图

▲ 商业南立面图
项目信息
项目名称:广州永庆坊吉祥段
建设单位:广州万恩产业投资有限公司
竣工时间:2025年
建筑面积:29600㎡
项目地点:广东省广州
建筑设计:上海都设营造建筑设计事务所有限公司
商业地块设计团队:凌克戈、李炼、雍有龙、姜安东、邹天辰、刘晓晴、王龙龙、王于楠、朱梦迪
金声电影院改造设计团队:凌克戈、岳秋骏、姜安东、罗丹娜、桑甜、李燚、石瑛琦
酒店设计团队:凌克戈、李炼、雍有龙、刘杰、刘晓晴
施工图设计:广东省建筑设计研究院有限公司
景观设计:广州山水比德设计股份有限公司
商业地块幕墙设计:深圳前海新概念建筑外墙设计咨询有限公司
商业地块照明设计:十聿(上海)照明设计有限公司
酒店室内设计:泰国P49 Deesign事务所
摄影:章鱼见筑、广东新山水文化发展有限公司、王骥
山庄提示: 道行不够,道券不够?---☆点此充值☆
 
在线jjybzxw

UID: 551814


发帖
215945
金币
643797
道行
2006
原创
2443
奖券
3260
斑龄
41
道券
1197
获奖
0
座驾
设备
摄影级
在线时间: 47053(小时)
注册时间: 2008-10-01
最后登录: 2026-01-03
只看该作者 沙发  发表于: 2小时前
Re:广州永庆坊吉祥段 / 都设设计[72P]
这篇关于广州永庆坊吉祥段城市更新项目的序言与设计解读,核心展现了上海都设营造以“修复城市空间格局为先,传统文化与时代性交融”为原则的更新实践,既延续岭南历史肌理,又注入现代商业与生活功能,打造出“没有围墙的广府生活博物馆”。核心内容梳理如下:

一、 项目背景与核心定位
1.  项目概况
    - 历时6年打造,位于广州永庆坊,是永庆坊项目的收官之作;包含金声电影院改扩建(已建成)、吉祥段商业街坊(部分建成)、酒店(未建)三大板块。
    - 核心定位:不是简单“修旧如旧”,而是“老广新广”共同参与的城市更新真人秀,兼顾城市文化、商业逻辑、流量、时代性四大要素。
2.  历史文脉根基
    - 文化源头:始于清代1757年“一口通商”,西关作为广州对外枢纽,形成“商住共生”格局;是连接上下九与荔枝湾的重要节点,83处建筑遗产串联历史空间网络。
    - 标志性建筑:1934年开业的金声电影院,曾是广州首家有冷气的影院,改造前仅剩一片残墙;改造范围内多为80年代砖房、违章危房,原始街区肌理荡然无存。

二、 核心更新策略:延续肌理,修复空间
1.  重塑街巷肌理——唤醒城市记忆
    - 追溯复原:恢复1937年吉祥段完整的城市肌理,遵循西关“三横五纵”街巷格局,保留麻石、趟栊门等岭南建筑符号。
    - 梳理交通:针对原有街巷曲折、断头路多、宽度仅3米的问题,打通断头巷道,保持走向与尺度,打造纯步行友好环境。
    - 填补空间缺憾:增设广场、口袋公园,解决永庆坊一期“无广场、无展示面”的问题;通过“张弛有度的空间截取”,塑造公共空间的节奏变化,避免街区“空心化”与“纯景区化”。
2.  解决老城区痛点——智能化停车方案
    - 以仅剩残墙的金声电影院为核心,打造立体机械式无人车库,在几千平米内实现300-400个车位,破解百万客流的停车难题。
    - 同步将金声电影院改造为多功能演艺场所(live house),回应其历史上的演出功能,实现“空间功能再生”。

三、 建筑设计:岭南风貌的传承与革新
1.  竹筒屋空间的现代转译
    - 提取西关竹筒屋“窄面宽、大进深”的核心特征,采用4米、4.6米两种开间模数:4米对应8米柱网一分二布局,4.6米契合柱网尺寸,既呼应传统尺度,又满足现代商业需求。
2.  传统元素的活态运用
    - 满洲窗:用现代手法再现窗型,兼顾传统意象与现代采光通风功能。
    - 灰塑工艺:将国家级非遗灰塑融入建筑立面细部,既增强艺术性,又推动传统工艺传承。
3.  新旧共生的设计手法
    坚持“和而不同”,让新建筑与老街区肌理契合,实现“建筑有新旧,街巷无不同”的视觉与空间统一,打造可阅读的建筑美学教科书。

四、 项目亮点与遗憾
1.  核心亮点:见人、见物、见生活
    保留原住民生活形态,游客可看到老广在榕树下下棋、听曲,真正打造“没有围墙的广府生活博物馆”,避免了文旅项目“重商业、轻生活”的通病。
2.  最大遗憾:未建成的酒店
    酒店项目是本次更新的开端,施工图已完成,却因最后一户拆迁受阻而搁置;设计融合“西关大屋+西关小姐”文化脉络,是项目最大的未竟之憾,也印证了城市更新“生长性”的特性。

五、 项目价值与启示
永庆坊吉祥段的更新,跳出了“大拆大建”或“过度仿古”的误区,以“针灸式”温和更新的方式,实现了历史记忆唤醒、空间功能活化、文化传承延续的三重目标,为国内老城区城市更新提供了可参考的范本——传承不难,难的是让过去的美好重回当下,让时代印记映射于历史肌理。
如何不发帖就快速得到金币道行
 
在线姜谷粉丝

UID: 1569053

精华: 2
级别: 玉清道君

发帖
165963
金币
477385
道行
20030
原创
766
奖券
359
斑龄
0
道券
30
获奖
0
座驾
设备
摄影级
在线时间: 20366(小时)
注册时间: 2012-06-21
最后登录: 2026-01-03
只看该作者 板凳  发表于: 47分钟前
广州永庆坊吉祥段(以吉祥广场为核心)是恩宁路历史文化街区“老城新生”伙伴计划的重点项目之一,于2025年5月建成开放。该项目聚焦“还空间于城市、还活力于社区”,将区域内最后一块较大型地块(荔枝湾水系转弯处重要节点)从闲置边角地改造为4500多平方米的公共空间,融合休闲、聚会、娱乐、艺术展示等功能,既提升了人居环境品质,也恢复了当地居民的乡愁记忆。

其设计注重结合居民诉求与岭南文化,以“月是故乡明”为主题打造林下空间,兼顾公共节庆活动与本地街坊健身需求,成为恩宁涌水尾与居民社区之间的“金角银边”。

都设设计(上海都设营造建筑设计事务所有限公司)参与了永庆坊二期的核心项目——金声电影院改造。改造遵循“保留记忆、设计点彩、四两拨千斤”的理念:保留金声电影院原有沿街骑楼与危墙等历史片段,新建部分采用“上新下古”的立面设计(上半部分承载文化演绎功能,下半部分延续传统商业骑楼界面);引入现代livehouse功能,将旧影院空间赋予新活力;

通过全自动智能停车系统解决街区停车难题,同时保证原有骑楼街的历史风貌完整性。其改造实践实现了历史文脉传承与现代功能的有机融合,成为永庆坊二期活化更新的重要亮点。
如何不发帖就快速得到金币道行
 
我有我可以
快速回复
限120 字节
认真回复加分,灌水扣分~
 
上一个 下一个