切换到宽版
  • 6阅读
  • 1回复

[奇观]湖北东方山佛教协会改造 / 反几建筑[43P] [复制链接]

上一主题 下一主题
在线jjybzxw

UID: 551814

 

发帖
215641
金币
640877
道行
2006
原创
2442
奖券
3260
斑龄
41
道券
1197
获奖
0
座驾
设备
摄影级
在线时间: 46987(小时)
注册时间: 2008-10-01
最后登录: 2026-01-02
只看楼主 倒序阅读 使用道具 楼主  发表于: 昨天 09:28
— 本帖被 xgch 执行加亮操作(2026-01-01) —










© 此间建筑摄影 赵奕龙
湖北东方山,被誉为“三楚第一山”,致力于打造中国佛教的第五大名山。在弘化禅寺设立的“药师佛道场”,与鄂西的武当山相对应,在湖北形成“问道武当、拜佛东方”的宗教文化旅游格局。

▲弘化禅寺与基地鸟瞰© 此间建筑摄影 赵奕龙

▲从自然中来的建筑入口© 此间建筑摄影 赵奕龙

▲流动的空间序列© 此间建筑摄影 赵奕龙

▲直面自然的室内空间© 此间建筑摄影 赵奕龙
东方山佛教协会项目位于湖北黄石市东方山弘化禅寺东南方,隐于一片山林环境之中。项目用地现状为一座年久失修的弥勒宫,拟将其改造成为集佛教文化展览与会议接待为一体的建筑组团。

▲改造后的东方山佛教协会© 此间建筑摄影 赵奕龙
01.
“动”的空间
山在自然中是静态的,但山脉的走势又是运动的。改造方案希望东方山佛教协会以自然流动的空间语法来表达对山的致敬,形成张弛有度、层层递进、步移景异的山地建筑空间体验。

▲宋·燕文贵《溪山楼观图》与空间概念草图© 反几建筑 FANAF (右)

▲鸟瞰© 此间建筑摄影 赵奕龙
设计以周边山地环境为起点,置入一套立体的空间体系,利用不同标高的毛石墙体来围合动态的空间。砌筑毛石墙的石块取材于周边山体,它们从自然中来,现在又以全新的方式来表达大自然的生命力。由这些墙体所定义的建筑室内外空间,顺应山的走势形成流动的序列,相互嵌套、层层跌落,诠释了建筑与自然共生、共长的设计初衷。
▲空间轴测分析© 反几建筑 FANAF

▲由毛石墙限定的入口空间© 此间建筑摄影 赵奕龙

▲室内外空间的融通© 此间建筑摄影 赵奕龙



▲流动的空间序列© 此间建筑摄影 赵奕龙赵奕龙(上) © 反几建筑 FANAF(下)
02.
“静”的场所
场地中原有的弥勒宫,呈现中国传统寺庙中轴对称布局,安静沉稳的嵌入周边山体之中。改造方案充分保留这种秩序感,将空间序列向外延伸,提供更多与自然对话的场所。

▲主庭院视角© 此间建筑摄影 赵奕龙

▲冥想空间视角© 此间建筑摄影 赵奕龙
设计在东区文化展览组团保留原弥勒宫的中轴线设置,延续佛教建筑应有的庄重特质。同时,将中轴线从一层展厅延伸出来形成静谧的水院入口平台,并转向西侧形成入口空间序列。西区的会议接待组团,则通过层叠错落的院落空间被组织起来。庭院、平台、天井、廊道等,分别以安静谦虚的姿态直面自然,使弥勒宫具有禅意的“静”的场所精神得以传承。



▲庭院与廊道空间© 此间建筑摄影 赵奕龙



▲“静”的场所精神 © 此间建筑摄影 赵奕龙(上)© 反几建筑 FANAF(下)
03.
“隐”的形式
东方山佛教协会项目具备独特的周边环境要素,其场地隐于东方山之中,自身又具备参禅隐修的功能属性。因此,改造方案提取“隐”的精神内涵,让外在形式尽可能消隐,更使空间与场所本身得以显现。

▲隐于自然的次入口© 此间建筑摄影 赵奕龙

▲屋顶平台视角© 此间建筑摄影 赵奕龙



▲与自然对话的场景© 此间建筑摄影 赵奕龙

▲直面自然的室内空间© 此间建筑摄影 赵奕龙


▲室内空间细部© 此间建筑摄影 赵奕龙(上) 反几建筑 FANAF (下)
设计采用单坡金属屋面来减轻屋顶的分量感,主体外立面采用以实木与毛石为主的自然材料,充分表达项目的在地性,同时使整组建筑更好的消隐于自然之中。由错动的墙体与屋面共同定义的立体空间体系,被真实的材料与建造方式赋予了自然的生命力。此时,外在的形式语言已悄然隐去,自然流动的空间记忆与禅意静谧的场所感受共同构成了改造方案的精神内涵。
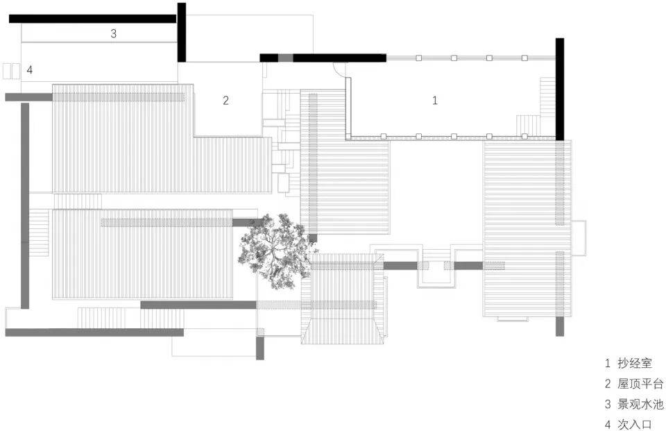
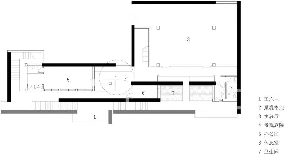
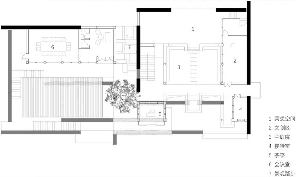
项目图纸与模型



▲模型照片© 反几建筑 FANAF

▲一层平面© 反几建筑 FANAF

▲二层平面© 反几建筑 FANAF

▲三层平面© 反几建筑 FANAF
▲剖面© 反几建筑 FANAF
项目名称:东方山佛教协会改造设计
项目地点:湖北黄石
建筑面积:1100平方米
设计单位:反几建筑设计事务所
设计主创:龚桓、金鑫
设计团队:史喆、钟少秋、俞铮
设计周期:2022年11月—2024年6月
施工周期:2024年6月—2025年6月
建筑摄影:此间建筑摄影 赵奕龙、反几建筑FANAF
撰文:龚桓
1条评分金币+30
xgch 金币 +30 辛苦了,感谢您无私奉献的精神! 昨天 18:07
山庄提示: 道行不够,道券不够?---☆点此充值☆
 
在线jjybzxw

UID: 551814


发帖
215641
金币
640877
道行
2006
原创
2442
奖券
3260
斑龄
41
道券
1197
获奖
0
座驾
设备
摄影级
在线时间: 46987(小时)
注册时间: 2008-10-01
最后登录: 2026-01-02
只看该作者 沙发  发表于: 昨天 09:29
要将湖北东方山打造为中国佛教第五大名山,并形成“问道武当、拜佛东方”的宗教文化旅游格局,需从文化定位、资源整合、品牌塑造、产业联动与政策支持五大维度系统推进。以下为战略路径的深度解析:
一、明确文化定位:构建“禅宗祖庭+地藏信仰”双核文化体系

东方山素有“三楚第一山”之称,历史上是禅宗重要道场,弘忍大师曾驻锡于此,且供奉地藏菩萨,具备深厚的佛教文化底蕴。要成为“第五大名山”,必须突破传统“四大名山”(五台山—文殊、峨眉—普贤、普陀—观音、九华—地藏)的单一菩萨信仰模式,打造具有差异化、本土化特征的文化IP。
强化地藏信仰的当代诠释:虽九华山为主祀地藏道场,但东方山可突出“地藏孝道文化”与“幽冥救度精神”的民俗化表达,结合荆楚孝文化传统,打造“中华孝佛圣地”。
复兴禅宗祖庭地位:依托弘忍东山法门的历史渊源,推动东方山成为“禅宗溯源之地”,与黄梅五祖寺形成呼应,构建“东山禅脉”文化走廊。
提出“第五大名山”的理论支撑:联合佛教协会、学术机构发布《东方山佛教文化白皮书》,论证其在中国佛教史上的独特地位,争取教界与学界共识。
二、空间重构与景观升级:营造“圣境化”朝圣空间

参照四大名山“进山—礼佛—修行—悟道”的朝圣动线,东方山需实现从普通景区向“宗教圣域”的空间转型。
打造“三重境界”游览体系:
尘世过渡区(山门外):建设禅意小镇、素食街区、文化集市,实现世俗与神圣的缓冲;
礼佛朝圣区(中轴线):修复历代寺庙群(如弘化禅寺),设立千手观音殿、地藏宝殿、万佛墙等核心建筑,形成庄严仪轨空间;
禅修静思区(山顶):开辟闭关房、禅堂、抄经阁,提供短期出家、禅修营等沉浸式体验。
植入标志性符号:建造百米级地藏菩萨铜像或琉璃塔,成为视觉地标与精神象征;
环境净化与生态禅林建设:推行“无塑寺院”“静音山林”,恢复古树名木,营造“人间净土”氛围。
三、品牌传播与市场整合:塑造“拜佛东方”超级IP

“问道武当,拜佛东方”不仅是口号,更是区域文旅协同的战略构想。武当山代表道教“问道”文化,东方山则应成为华中“礼佛”首选目的地。
联合营销,构建“鄂东宗教金三角”:与武当山、五祖寺、归元寺联动,推出“荆楚双修之旅”(道佛同参)、“两湖朝圣环线”等产品;
节庆引爆流量:创办“中国地藏文化节”“东方禅光灯会”“孝亲法会”,邀请高僧开坛讲经,吸引信众与游客;
数字化传播矩阵:
开发“云拜佛”小程序,实现线上供灯、祈福、抄经;
拍摄纪录片《东方山·千年佛光》,登陆央视与海外平台;
联合抖音、小红书打造“打卡圣地”,策划“我在东方山遇见自己”情感营销。
四、产业融合与功能拓展:从“观光”走向“心灵经济”

单一烧香拜佛难以支撑“第五大名山”的长期发展,必须向“文化+康养+教育+艺术”复合型产业转型。
发展禅意康养产业:引入中医理疗、正念冥想、茶禅养生项目,打造“身心疗愈基地”;
建设佛教文化学院:开设居士培训班、僧伽研修班,与高校合作设立宗教研究所;
推动文创衍生开发:设计“地藏十愿”系列盲盒、禅语香具、佛系潮服,让传统文化走进年轻人生活;
赋能乡村振兴:带动周边村庄发展民宿、素斋馆、手工艺作坊,实现“一座山带活一方百姓”。
五、政策协同与机制创新:争取国家级文化战略支持

“第五大名山”的确立不仅是民间认同,更需获得政府与宗教主管部门的认可。
纳入省级文旅重大工程:争取列入湖北省“十四五”文旅发展规划重点项目,获得资金与土地支持;
申报国家级文化地标:启动“中国佛教五大名山”联合申遗前期研究,或将东方山单独申报为“国家宗教活动场所重点保护单位”;
建立多方协作机制:成立由省政府牵头,宗教、文旅、住建、环保等部门参与的“东方山佛教名山建设协调小组”;
规范宗教活动管理:在开放旅游的同时,保障寺院清净性,避免过度商业化,维护佛教尊严。
结语:以“山”载道,以“佛”化人

打造东方山为中国佛教第五大名山,绝非简单复制九华或普陀,而是要在新时代语境下,重新定义“名山”的精神内涵——它不仅是信仰中心,更是中华优秀传统文化的传承载体、现代人安顿心灵的精神故乡。

“问道武当”体现的是对天道自然的探索,“拜佛东方”则指向内心的慈悲觉醒。二者并立,恰构成中国人精神世界的阴阳两极:一刚一柔,一道一释,共同构筑起荆楚大地乃至整个中部地区最具厚度的宗教文化版图。

未来之东方山,不应止于“香火旺盛”,而应成为集信仰朝觐、文化研学、心灵疗愈、生态示范于一体的东方灵性高地,真正实现“山不在高,有佛则名;名不在久,化人则灵”。

1条评分金币+6
xgch 金币 +6 回复认真,加分鼓励 昨天 18:07
如何不发帖就快速得到金币道行
 
快速回复
限120 字节
认真回复加分,灌水扣分~
 
上一个 下一个